2813 Bentley Road Lot# 35 West Kelowna V4T3A9






















































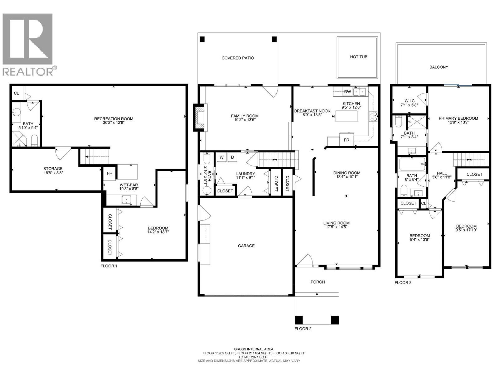
This 6 bedroom (3 upstairs and 3 downstairs) 3 bathroom home is perfect for growing families, nestled in a family oriented neighbourhood. There are 3 bedrooms upstairs with a main full bathroom and a four piece ensuite off the primary bedroom. The upstairs deck is a prime spot for relaxing in a chair and soaking up the sun while watching kids or pets play in the fully fenced backyard. A natural gas hook up allows for unlimited BBQing or cozying up to the chiminea in the cooler months - S’mores anyone? The lower level has potential to be created into a two-bedroom suite (buyer to do their own due diligence) leaving the third bedroom and the garage as part of the main home. Hiking trails right outside your door, close to Elementary schools, walking distance to middle school and high school. Priced for quick sale (id:56537)
Data from sources believed reliable but should not be relied upon without verification. All measurements are approximate.
Courtesy of : Royal LePage Kelowna
2813 Bentley Road Lot# 35 West Kelowna V4T3A9
This site nor its owners, REALTOR® or Brokerage assume any responsibility for the accuracy of its content. You are strongly advised to perform your due diligence.
Use of this site is bound by the Website Terms of Use. The term REALTOR® used under license from CREA.