Discover Big White BC

 Neighbourhood Real Estate

Big White is a ski resort located in British Columbia. It is one of the largest ski resorts in the country, with over 2,700 acres of skiable terrain and 118 marked runs. The resort offers a range of skiing and snowboarding experiences, from beginner slopes to challenging backcountry terrain.

Big White is known for its high-quality snow, with an average of 750cm of powder each year. The resort is also known for its family-friendly atmosphere, with a variety of activities and events for all ages. These include ice skating, tubing, snowshoeing, and more.

Accommodations at Big White range from hotels to condos and vacation homes, with options for all budgets. There are also a variety of restaurants, shops, and other amenities on-site.

Big White is located in the Okanagan Valley, approximately one hour from the city of Kelowna. The resort is easily accessible by car, and shuttle services are available from Kelowna International Airport.

Copyright © 2026 Don Rae REALTOR® - Royal LePage 5-10058 Hwy 97 Lake Country, BC Direct Cell: (250) 864-7337 - Office: (250) 766-3300
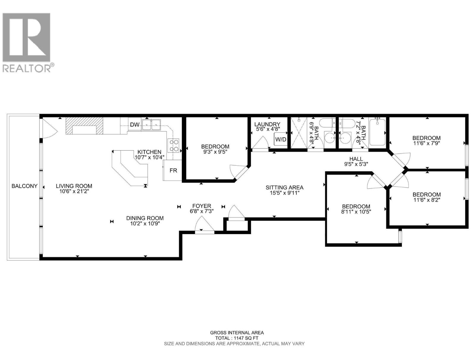
Data from sources believed reliable but should not be relied upon without verification. All measurements are approximate and should be verified.

This site nor its owners, REALTOR® or Brokerage assume any responsibility for the accuracy of its content. You are strongly advised to perform your due diligence. Use of this site is bound by the Website Terms of Use. The term REALTOR® & MLS® are owned and used under license from CREA. Not intended to solicit properties currently under contract.